名古屋市中川区のドローン屋内練習場レンタル|FREIHEIT

名古屋市中川区のドローン屋内練習場レンタル

名古屋市中川区でドローンの練習場所をお探しなら、株式会社FREIHEITの屋内練習場をご利用ください。
屋内施設のため、雨や風など天候の影響を受けにくく、落ち着いて練習時間を確保できます。完全予約制で、初心者の方から機体持込で練習したい方までご相談いただけます。

屋内練習場の予約・お問い合わせはこちら

名古屋市中川区のドローン屋内練習場の全景

FREIHEITの屋内練習場が選ばれる理由

屋内でドローンを練習している様子

屋内だから天候に左右されにくい

雨や風の影響を受けにくい屋内環境のため、予定を立てやすく、練習を中断しにくいのが特長です。屋外での練習場所探しに悩んでいる方にも適しています。

FREIHEIT屋内練習場の外観と入口

名古屋市中川区で利用しやすい立地

所在地は名古屋市中川区中須町194です。バス停「寺腰」から徒歩2分、地下鉄「高畑駅」から徒歩18分で、車でも金山から15分と利用しやすく、前面に無料駐車場6台分があります。

レンタル可能なトイドローン機体

機体持込にもレンタルにも対応

お持ちの機体で練習したい方だけでなく、まずは気軽に体験したい方向けにトイドローンレンタルにも対応しています。用途や経験に合わせて選びやすい環境です。

このような方におすすめです

  • 名古屋市中川区周辺でドローンの練習場所を探している方
  • 雨天でも使えるドローン練習場を探している方
  • これからドローンを始めたい初心者の方
  • 操縦経験を積みたい方
  • 機体購入前にまずはレンタル機で試したい方
  • 屋外での飛行場所探しに悩んでいる方

ご利用料金

内容 料金(税込)
機体持込 2,200円 / 1時間
トイドローンレンタル 1,100円 / 1時間

※料金は掲載時点の内容です。詳細はご予約時にご確認ください。

ご利用案内

予約可能時間

9:00~18:00
※最長20:00まで相談可能
※通常は10:00~のご案内です

お支払方法

  • 現金
  • PayPay

キャンセルポリシー

  • 前々日17時まで:無料
  • 前日17時まで:半額
  • 当日:全額

屋内練習場をおすすめする理由

ドローンの練習をしたくても、都市部では屋外で安心して飛ばせる場所を見つけにくいことがあります。屋内施設であれば、天候の影響を受けにくく、落ち着いて練習しやすい環境を確保できます。

また、機体購入前にレンタル機で操作感を試したい方にも活用しやすく、今後の機体選びの参考にもつながります。

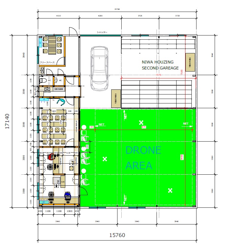
屋内マップ

ご利用の流れ

1. お問い合わせ

フォームより、希望日時・利用内容・人数をお知らせください。

2. 日程確認

空き状況を確認のうえ、ご利用可能な日時をご案内します。

3. 当日ご来場

予約時間に合わせてご来場ください。お車の方は前面駐車場をご利用いただけます。

アクセス

所在地
〒454-0921
愛知県名古屋市中川区中須町194

公共交通機関でお越しの方

  • 地下鉄「高畑駅」下車 徒歩18分
  • バス「寺腰」下車 徒歩2分
  • おすすめルート:金山駅バス乗り場「金山22 戸田行」→「寺腰」下車

お車でお越しの方

  • 前面に無料駐車場6台分あり

Googleマップ

FREIHEIT屋内練習場前の駐車スペース

高畑駅からの道順

  1. 地下鉄高畑駅より八熊通り沿いを直進
  2. 野田三丁目交差点(葬儀会館TEAR様横)を左折
  3. 1つ目の鉄塔がある交差点を左折
  4. 1つ目のT路地を右折
  5. 直進し、突き当たりを左折すると見える倉庫がFREIHEITです

※看板が目印です

動画で道順を見る

よくあるご質問

初心者でも利用できますか?

はい。これからドローンを始めたい方からのご相談にも対応しています。まずは屋内で落ち着いて練習したい方に適しています。

機体を持っていなくても利用できますか?

はい。トイドローンレンタルがあります。まずは試してみたい方にも利用しやすい内容です。

駐車場はありますか?

はい。前面に無料駐車場6台分があります。

何時まで利用できますか?

予約可能時間は9:00〜18:00で、最長20:00まで相談可能です。通常は10:00〜のご案内です。

支払い方法を教えてください

現金またはPayPayに対応しています。

お問い合わせ・ご予約について

名古屋市中川区でドローンの屋内練習場をお探しの方は、まずはお気軽にお問い合わせください。
ご希望日時、利用内容、人数などを確認のうえ、空き状況をご案内いたします。完全予約制のため、事前のお問い合わせをお願いいたします。

空き状況を確認する

電話でのお問い合わせ:050-6863-4091